• Home Page
  • About us
  • Products
    • Prison/Security Products
    • Architecural Steel Fabrications
    • Structural Steel Fabrications
    • Stainless Steel and Steel Staircase
    • Tool Cabinets
    • Barbecues
    • Electrical Control Cabinets
    • Gaming Machine Cabinets
    • Outside Furniture, etc.
  • Contract Work to your Designs
  • Previous Projects
    • Ararat Prison
    • Ibis Hotel
    • Glenfield Car Park
    • Pullman Hotel
    • Hunter Street
    • Roseville College
  • Contact Us

Kindle Force

S
'

Prison/Security Products


As part of a 400m AUD, 350 bed expansion of the Medium Security Ararat Prison in Victoria, Australia we have recently supplied:

  • 300 Cell Doors
  • 1550 Cell and Accommodation Windows
  • 252 Items of Cell Furniture (beds, vanity cases, cell desks, cell shelving)
  • Plus 170 metric tonnes of Security Fence Posts for the prison permitter

Ongoing projects in the sector will see us manufacturing for approximately a further 600 cells for both detention and prison centres in Australia during 2012/2013.
{

quality fabricated steel products……

  • collage image title

    Prison Door

     

  • collage image title

    Prison Door

     

  • collage image title

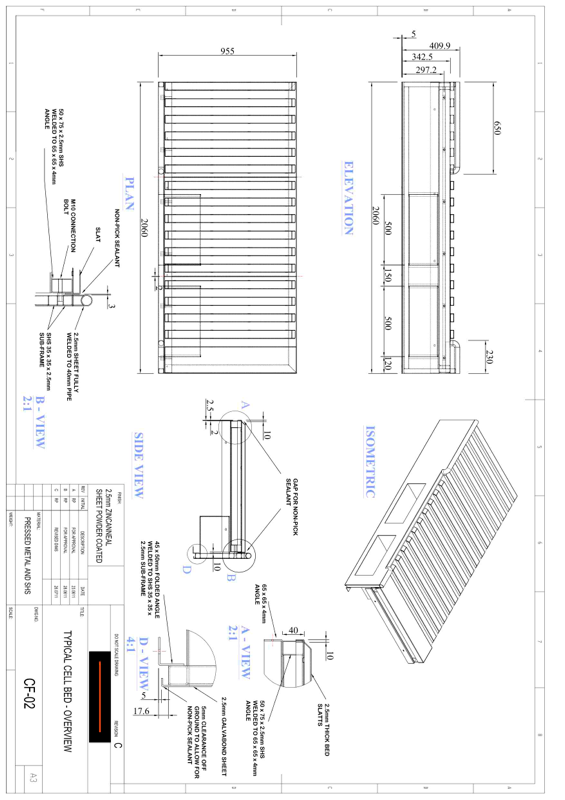
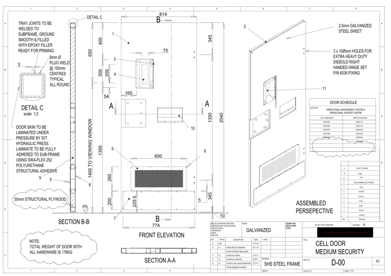
    Prison Door Specs

     

  • collage image title

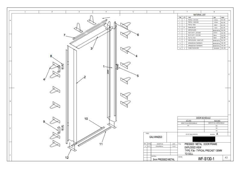
    Prison Door Frame Specs

     

  • collage image title

    Door Frames before Shipment

     

  • collage image title

    Prison Fencing

     

  • collage image title

    Prison Fencing

     

  • collage image title

    Cell Bed

     

  • collage image title

    Cell Bed Specs

     

  • collage image title

    Window with Security Louvre

     

  • collage image title

    Window WD2 3

     

  • collage image title

    Window WD01

     

  • Home Page
  • Products
  • Prison/Security Products
© 2012 Kindle Force Contact Us